质鼎国际设计
质鼎国际设计
设计师:王利亚
设计年限:6年
擅长风格:现代简约、轻奢、新中式、美式、北欧、极简等
代表作:六合天寓、北辰奥园、朗诗国际、广浦公寓等
萧山明华名港城
常住4人,大女儿3岁,即将迎来二胎宝宝。夫妻二人比较喜欢美式风格,喜欢家里温馨一些。后期父母会过来帮忙带小孩,所以希望保留三个房间。



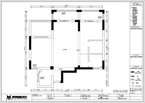
户型优劣势:
户型优势:户型比较方正,空间利用率很高,采光也很好。
户型劣势:主卧室的阳台扩进来后,上面会有一根梁,进门不好放鞋柜,外机位比较少。
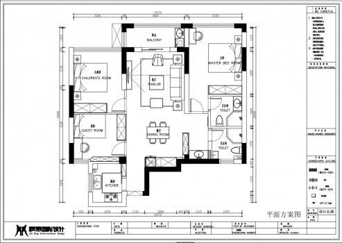
户型改造:进门将厨房墙体打掉做嵌入式的半高鞋柜,增加进门储物;主卧阳台扩进主卧,增大主卧空间;儿童房外的赠送部分也扩进房间,客卫门洞墙体打掉,改变原本门洞位置,做干湿分离,增加客卫的利用率。

将冰箱从厨房中拿出来,嵌进餐厅旁储物柜中,整齐美观,墙面贴磁性黑板贴,打造属于宝宝的绘画天地。矮鞋柜上面定制玻璃隔断,增加厨房与进门过道采光的通透性。

主卧门口放装修端景柜,配一幅装饰画,让过道不显得单调,餐厅酒柜挡住客卫门洞,进出卫生间也不显得尴尬。入户旁边墙上挂上试衣镜,出门前整理漂亮妆容。

儿童房房门将电视背景墙打断,做大圈石膏线搭配墙布,增加美式的特色,使背景墙更显得大气。

沙发背景墙与电视背景墙做呼应的石膏线和墙布,整个空间更协调大气,美式壁灯点缀墙面,整个空间更加精准。



顶面走一圈8公分石膏阴角线,地面相对应一圈波打线,将客餐厅余其他空间分割开,更显客餐厅的大气。顶面4公分石膏平线,又将客餐厅分开,区域分明。
儿童房一改整体风格,看上去更干净清爽,为小孩营造一个很好的学习氛围。
相关知识
质鼎国际设计
上海质鼎国际交流联合兔宝宝全屋定制定制战略交流会圆满成功
重磅|安乐窝与御鼎国际集团达成深度战略合作
“上海国际商业综合体展览会”落幕,上海鼎实建筑大放异彩
舒适家居快讯 | 东芝空调与御鼎国际集团战略合作签约仪式顺利举行
华耐设计基金设计师王志鹏作品《通用国际》荣获第五届红鼎创新大赛“红鼎优秀作品”
陶卫快讯|御朝卫浴斩获设计大奖“华鼎奖”
强强联手 聚力整装 - 御鼎国际与安乐窝、三人禾展开深度战略合作
家装快讯 | 御鼎国际与安乐窝、三人禾达成深度战略合作
见证设计之光 | 艺鼎设计创始人王锟受邀出席“光环境下的艺术设计”高峰论坛
推荐资讯
- 1顾家家居37周年,家居电商的 70578
- 2小米电视卸载自带应用教程!手 69702
- 3灯塔组设计批评:光的背面 48871
- 4新中式设计,灰色调的空间,简 45949
- 5地暖机和壁挂炉有啥区别?装地 14732
- 6宝子们,看看这个意式极简风设 14719
- 7恭祝泰安文华里【武府】开工大 14698
- 8武汉新房甲醛治理,这些门道要 14629
- 9大门向东属于什么宅?居家风水 13576
- 10入户门怎挂五帝钱?增加财运的 13091