红鼎大赛获奖案例4 | 197㎡宝藏美宅,四口之家的高配生活!
获<红鼎优秀作品奖>奖项
设计作品《四季青诚品建筑》
设计师:姜瑞鹏
▲姜瑞鹏及其获奖证书
如果说建筑改变着一座城市的气质,那么室内空间则铺垫出了舒适、人文的高品质生活。对于室内设计师而言,不仅是在设计美,更多的是设计质感,不着眼于形体、色彩等外在的现象层,而是极力去影响空间的气质、风格,以及与人的关联。
这是一个四口小家,男业主是律师事务所的创始人,女业主是自由职业者。他们有两个孩子:大男孩12岁,小男孩10岁,正处于活泼好动的年纪,设计师精心设计将两代人的需求融合在一起。
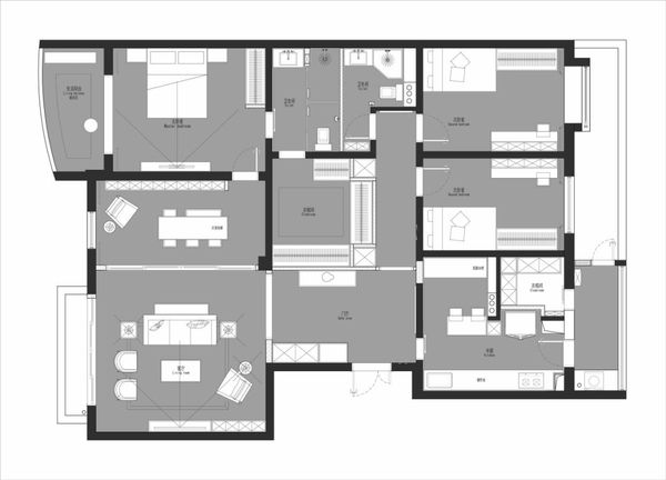
房屋地址: 海淀区 四季青桥诚品建筑 远流清园
房屋风格:现代简约
房屋面积:197㎡
户型:四室两厅二卫一厨
户型图和平面布局图
设计要点:
1)原有的卫生间一分为二,改成两个卫生间,解决了卫生间早晚使用高峰期拥挤的难题。
2)原有的客卫融入到了厨房里,改成了中西餐一体的方式,平常家里没客人就可以在厨房里解决吃饭的问题。
洗衣机留在阳台,晾晒起来比较方便,旁边还配有储物间,来存放晾晒好的衣服。
3)客厅和餐厅设计打破传统做成了多功能餐厅,来客人了可以在这里解决吃饭的问题;也可以在这里进行亲子活动;关上门男业主还可以在这里办公。
案例空间分析
客厅
客厅是一个家庭最重要的空间,可以在这里和家人讨论一天的琐碎小事,以及工作中的难题,因此在颜色的选取中尽量用中性色来修饰整个空间。
三人沙发以及单人休闲沙发形成一个围合的区域,面对面的交流,增进彼此的感情。
书房

书房在传统的意义里是一个家的文化底蕴的体现。但在这里,设计师打破常规,把原有的书房作为多功能区域来使用,增大它的使用率。
男业主可以在这里办公看书,女业主可以在这里辅导孩子写作业,逢年过节还可以在这里聚餐,让这个区域不再单一化。
主卧
主卧室注重色彩之感、层次分明,遵循上轻下重的设计思路。简单的地毯、简约的造型,营造细腻而耐人寻味的意境。
主卧休息区家里时间待的最多的一个区域,那么在我看来他应该是让人忙碌的身心放松的区域,色彩采用咖色让整个空间充满温馨感。
儿童房
两个儿童房在设计上采用相同的设计。考虑到年龄相差不大,选东西都要一样的,因此只根据两个孩子的性格对颜色进行了区分。黄色、蓝色的背景墙与窗帘颜色相呼应,使空间更具有连贯性,简单的调整便让两个房子看起来与众不同。
▲大儿子卧室:这个色彩的搭配是根据孩子的性格来选取的,老大性格内向不善于沟通,采用活泼的橘色和暖黄色,希望能让孩子的性格更加开朗一些。
▲小儿子卧室:小儿子性格活泼好动,家长希望用浅蓝色来装饰他的空间,希望他在未来能更加沉稳。
设计师说:最理想的设计,无疑是将业主的需求与艺术的审美结合起来,跳出样板间的固定风格模式,量身定做出独一无二的人居生活。
设计师:姜瑞鹏
职称:主任设计师
工作年限:4年
所属设计部:今朝装饰 北五行设计部
擅长风格:现代简约、北欧、新中式、地中海、美式、欧式......
设计理念:打破常规,不被风格限制,每个家都是一种风格。
如果想要咨询更多详情,欢迎致电400-678-9878
相关知识
红鼎大赛获奖案例4 | 197㎡宝藏美宅,四口之家的高配生活!
华耐设计基金设计师鲁宝凯作品《观承别墅》荣获第五届红鼎创新大赛“红鼎优秀作品”
华耐设计基金设计师李智作品《叶·汇美》荣获第五届红鼎创新大赛“红鼎优秀作品”
联邦尚品道宽宅吊顶斩获2020红鼎奖,用完美征服饰界
红鼎创新大赛|专访汤君君:遵循自然的规律
红鼎大赛获奖案例5 | 113㎡的亲子宅,元素混搭容纳六口之家!
华耐设计基金设计师张云龙作品《静》荣获第五届红鼎创新大赛“红鼎优秀作品”
华耐设计基金设计师唐琨作品《意·韵》荣获第五届红鼎创新大赛“红鼎优秀作品”
华耐设计基金设计师郭小珍作品《境》荣获第五届红鼎创新大赛“红鼎优秀作品”
华耐设计基金设计师焦建立作品《悟》荣获第五届红鼎创新大赛“红鼎优秀作品”
推荐资讯
- 1顾家家居37周年,家居电商的 72322
- 2小米电视卸载自带应用教程!手 71425
- 3灯塔组设计批评:光的背面 49385
- 4新中式设计,灰色调的空间,简 46460
- 5地暖机和壁挂炉有啥区别?装地 15213
- 6宝子们,看看这个意式极简风设 15199
- 7恭祝泰安文华里【武府】开工大 15172
- 8武汉新房甲醛治理,这些门道要 15105
- 9龙湖集团与蚂蚁集团达成战略合 13685
- 10大门向东属于什么宅?居家风水 13592